Discover the new LUXURY CONDO HOTEL TOWER nestled in Brickell
80 Residences / 22 Stories.Studios, One, Two and Three Bedroom Configurations.Developed by Habitat Group & BI Group. Designed by Kobi Karp.
Residences
Floor Plans
Amenities
About Brickell
Location
The team
Why invest in Miami
Prices & Payment Plan
Contact Us
Delivery 2028.


Studios, One to Three Bedroom Configurations
The Residences
All Luxury condos in Season One Brickell include fully equipped kitchenettes, custom cabinetry, terraces with floor-to-ceiling sliding glass doors and more!
Click the photos for more details
Spectacular Common Areas
Luxury Amenities
Season One Brickell features spectacular resort-style amenities, including a pool deck, fitness center, rooftop bar, lounge and more!
Click the photos for more details

THE LOCATION
Building Address:
1200 SW 2nd Ave, Miami, FL 33130
- Brickell City Centre: 20 minutes’ walk- Downtown: 7 minutes’ drive- Wynwood: 15 minutes’ drive- Miami Beaches: 23 minutes’ drive- Miami Airport: 20 minutes’ drive- Key Biscayne: 16 minutes’ drive
Prices | Location | Contact Us
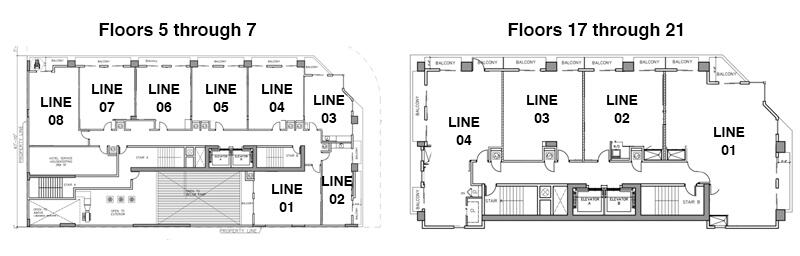
Floor plans of Season One Brickell

Click the Links below to Download the Floor Plans
| Type | Configuration |
|---|---|
| Line 08 Floors 5-7 | Studio / 1 Bath (613 SF) |
| Line 03 Floors 5-7 | Studio / 1 Bath (432 SF) |
| Line 06 Floors 5-7 | 1 Bed / 1 Bath ( 519 SF) |
| Line 03 Floors 17-21 | 1 Bed / 1 Bath (543 SF) |
| Line 01 Floors 17-21 | 3 Beds / 2 Baths (1017 SF) |

ABOUT BRICKELL
Brickell has undergone significant transformation due to rapid urbanization, erasing much of its original charm. Initially designed for opulent mansions and grand residences by Mary Brickell, the area earned the moniker "Millionaire's Row." However, starting from the 1970s, Brickell witnessed a shift with the emergence of towering office buildings along Brickell Avenue and high-rise residential structures in its southern precincts. The subsequent commercial surge in the 1980s spurred the construction of numerous office towers, reshaping Brickell into a densely populated urban hub blending residential and commercial elements. While historic remnants dot the landscape, including the iconic Tobacco Road, Brickell thrives on robust public transportation, with the Metrorail and free Metromover system seamlessly integrating the neighborhood into Miami's bustling urban fabric. Brickell's evolution mirrors the rapid urbanization experienced over decades, diluting its original essence.The commercial boom in the 1980s catalyzed further development, cementing Brickell as a vibrant urban enclave blending residential and commercial sectors.
THE TEAM
DEVELOPERS
Habitat Group is a real estate development firm based in Miami. Since their origins, the firm has delivered the entire process of development with innovation and intelligence. Their goal is to share with investors the return generated by professional, strategic and innovative ventures.BI Group a team of developers based in Kazakhstan. With their firm functioning since 1995, they have become leaders of their countries' Real Estate Market. Today, BI Group's structure consists of divisions and directorates in various spheres of construction, development and engineering.


THE ARCHITECT
Kobi Karp is the Founder and Principal of Kobi Karp Architecture and Interior Design, Inc. (KKAID), established in 1996. Since its inception, Kobi Karp has led the firm's design efforts. KKAID offers comprehensive architecture and interior design services, ranging from large-scale high-rise condos and hotels to smaller residential and commercial buildings.Karp graduated from the University of Minnesota's Institute of Technology with degrees in Architecture and Environmental Design. He began his career working on major hospitality and resort projects across the U.S. and the Caribbean. His expertise in restoration has significantly contributed to the revival of Miami Beach’s renowned Art Deco District.
WHY INVEST IN MIAMI
Investing in Miami offers numerous benefits, making it a prime real estate destination. Miami's strategic global location ensures robust economic growth and a thriving job market. The city attracts millions of tourists yearly, driving high demand for rental properties. Its real estate market boasts strong property appreciation and diverse investment opportunities. Miami offers a rich cultural scene, world-class dining, shopping, and entertainment, alongside beautiful beaches and a warm climate. The favorable tax climate, with no state income tax, further enhances its appeal. Excellent transportation infrastructure, including Miami International Airport and PortMiami, ensures seamless connectivity. With vibrant communities and continuous development, Miami promises immediate returns and long-term growth, making it an ideal investment choice.


Pricing & Payment Structure
Price Ranges
STUDIOS FROM $780,000
Payment Plan
20% at Contract
10% at Groundbreaking
10% at at 4th Floor of construction
10% at Top Off
50% at Closing
This is a great investment opportunity!
You only need 10% to reserve a unit.
Make a reservation today, inventory is limited!

PREsented by miami residential group
Contact us
Fill out this form for inventory and more information.
+1.305.647.2663
© 2024 Miami Residential Group. This website is an independent site. All the related information text and rendering provided by developer. This website, the information provided, including pricing is solely for information purpose and is subject to change without notice. For the correct representation make reference to the document by section 718.503 of the Florida statues, to be furnished by the developer and subject to change. This website cannot be relied upon as correctly stating the representation of the developer. We are not at all related to the developer in any way. Oral representation cannot be relied upon as correctly stating the representation of the developer. No federal agency has judged the merits or value if any of the property. This is not an offer to sell or solicitation to offer to buy, the condominium units in states where such offer or solicitation cannot be made. As Realtors we offer unbiased real estate representation to buyers and sellers. We offer individualized real estate services for you and not for the developer.








